静安里售楼处德信体育- 德信体育官网- APP下载电线最新价格 静安里户型图-楼盘配套-小区环境

发布日期:2025-10-13 08:43:03 浏览次数:

  德信体育,德信体育官网,德信体育APP下载,德信体育网址上海静安里✅✅售楼处电线✅✅,位于百年历史街道武进路旁,以历史原线席低密风貌大宅,保留南市北里的格局,在成片的风貌之间,诠释出入之间迷人的摩登生活诗篇。上海静安里✅✅售楼处电线✅✅

  上海静安里✅✅售楼处电线✅✅项目所在地为苏河湾风貌区,周边风貌街区集群,放眼整个苏河湾,风貌保护建筑达50万㎡,是全市风貌建筑最密集的地区之一,上海静安里所属苏河湾北段,是风貌成片、格局完整、具有较高历史保护价值的风貌街坊。上海静安里✅✅售楼处电线✅✅

  上海静安里✅✅售楼处电线✅✅作为当下上海中心难得的成片整体更新的风貌片区,更串联起周边石库门里弄、街坊等文化地标,打造集历史保护、城市更新于一体的超级IP,为上海提供风貌片区更新的新样本。上海静安里✅✅售楼处电线✅✅

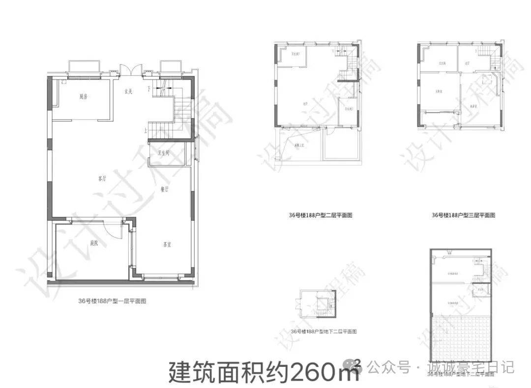
  上海静安里✅✅售楼处电线✅✅最新消息:静安里实景样板间已开放!纯风貌别墅社区,总共222席,建筑面积在185-370㎡之间,上海静安里✅✅售楼处电线万/㎡。

  上海静安里✅✅售楼处电线✅✅在上海的城市肌理中,有些街道如同年轮般记载着岁月的痕迹

  行走其间,仿佛翻阅一部立体的城市传记,每一栋建筑都是一个章节,每一条弄堂都是一段注脚

  还有之前提到的唐宅,作为中华民国首任总理、外交官唐绍仪的故居,TA是老上海百年前的优雅巅峰,是当时建造设计的最高水准

  上海静安里✅✅售楼处电线✅✅如果说一条武进路,可以漫步穿梭于半部上海史,那唐宅就是这册长卷的题跋和序言上海静安里✅✅售楼处电线✅✅

  为了让唐宅继续生长,静安里修旧如旧,将对建筑原貌的尊重化为克制,将更多经历花在了你看不见的地方

  内部采用了钢结构加固,采用了深约24米的锚杆静压桩,这样的大动作,在近20年的国内保护修缮项目中都很罕见

  上海静安里✅✅售楼处电线✅✅上海静安里✅✅售楼处电线✅✅在经年修缮之后,今年6月21日,上海静安里·唐宅以“苏河风貌·海派会客厅”之名焕新启幕,每一位走进唐宅海派会客厅的观众,都能感知上海文化遗产的温度与厚度上海静安里✅✅售楼处电线✅✅

  静安里已然成为串联苏州河百年文脉的“中枢”,老上海的绝代风华在这里持续生长

  老实讲,这样的文化、历史天赋,已经足以羡煞一众市区风貌项目,但这还不是静安里的全貌

  静安里与一路之隔的弘安里更是苏河风貌区的核心,整个区域总体的低密度街区占地面积超过30万㎡,有近百万方的城市风貌更新区域,相当于28.3个新天地(来源:上海2035规划)

  约10万方的今潮8弄(18街坊),包含了8条里弄、60幢石库门房子和多幢优秀百年历史建筑

  在静安里和弘安里的连接处,“南市北里”的苏河风貌区商业新名片也正在酝酿中

  沿着武进路,上海静安里✅✅售楼处电线✅✅静安里将打造一条风貌街区,总体量近1万㎡,未来建成后,这里将是上海城市历史文化遗产集群之大成者

  成为足以媲美甚至超越新天地、思南公馆、张园的历史风貌代表,跻身上海新的文化和商业地标

  苏河风貌·海派会客厅的历史文脉纵深,让静安里化身海派文化在当代的代言人,立于文化价值的制高点

  而苏河风貌区庞大的低密住宅群,不仅仅是简单的财富聚集,而是一个具有共同文化基因的圈层,这是城市发展和规划带来的先天优势,从时间与空间的双重维度,重新定义“绝版”的珍贵!上海静安里✅✅售楼处电线✅✅

  目前市面上大多数风上海静安里✅✅售楼处电线✅✅貌别墅受限于指标,普遍采用超高层+别墅的高低配组合

  反观静安里,凭借超低容积率的地块天赋,不仅带来了更纯粹的墅居氛围,还是整个内环别墅体量更大的社区

  这样的社区布局带来的优势是显而易见的,静安里可以因地上海静安里✅✅售楼处电线✅✅制宜把产品力发挥得淋漓尽致,带来更大的楼间距、更优的采光和景观打造空间

  社区内部尊重原有肌理,静安里妥善留存更新原有不同风格建筑,通过保护修缮、保留改造、更新改建、织补新建四大更新手法,打造了10种建筑立面风格,让各个时代建筑和谐共存

  七坊、三十二弄、七大石库门串上海静安里✅✅售楼处电线大组团,八个不同规制的坊门,散落于组团之间,营造出了归家动线上的连续仪式

  六大世界经典花园融入上海及世界优秀花园样式,汇成海派花园的园区巡礼,以每个独属于上海的百年场所记忆进行时空平移打造海派花园百科全书

  静安里还是历史风貌住宅里面少有的有会所的项目,约1000㎡的私属会所,为业主提供星级高端服务接待休息区,还配备了健身房、瑜伽室、泳池等,集萃一站式高阶生活服务空间礼遇

  聚焦到风貌别墅本身,静安里上海静安里✅✅售楼处电线大定制级的产品设计手法,通过定制级手工砖、定制级山花造型、定制级铁艺栏杆、定制级入户壁灯、定制级的风帽雨水斗等部品部件,每一处细节都是匠心打磨的痕迹

  户型和附赠空间,项目沿袭历史建筑格局,提高窗墙比,降低围墙高度,拓展地下空间

  可以说,静安里在地块天赋基础上,将居住的实用性、舒适度拉满,以超越时代的远见,重新定义了风貌别墅的生活范式

  对于这种不可复制不可再生稀缺资源的占有,永远会是上海住宅资产配置的至高信条

  而苏河湾正是处于一江一河的交汇处,保证业主能在世界都心享全球封面级生活!

  苏河湾不仅有苏州上海静安里✅✅售楼处电线✅✅河的慢生活,更在此之上叠加了浓郁艺术气息,这就让板块气质、价值得到升华,完全区隔于一些老牌板块和现在的新贵区域

  税收350亿元,连续3年实现两位数增长;去年一季度实现税收34.98亿元,同比增长12.8%,增速超过了南京西路功能区

  苏河湾正成为上海一个新的“聚宝盆”,未来五年,更是将肩负世界级滨水商务区和世界级“城市会客厅”的重担

  规划能级超群:北上海静安里✅✅售楼处电线倍),480米新地标领衔5栋300米+、13栋200米+摩天建筑群,打造浦西全新制高点

  上海静安里✅✅售楼处电线✅✅上海华贸中心预计2026年竣工;480米北外滩中心等地标群预计2030年建成